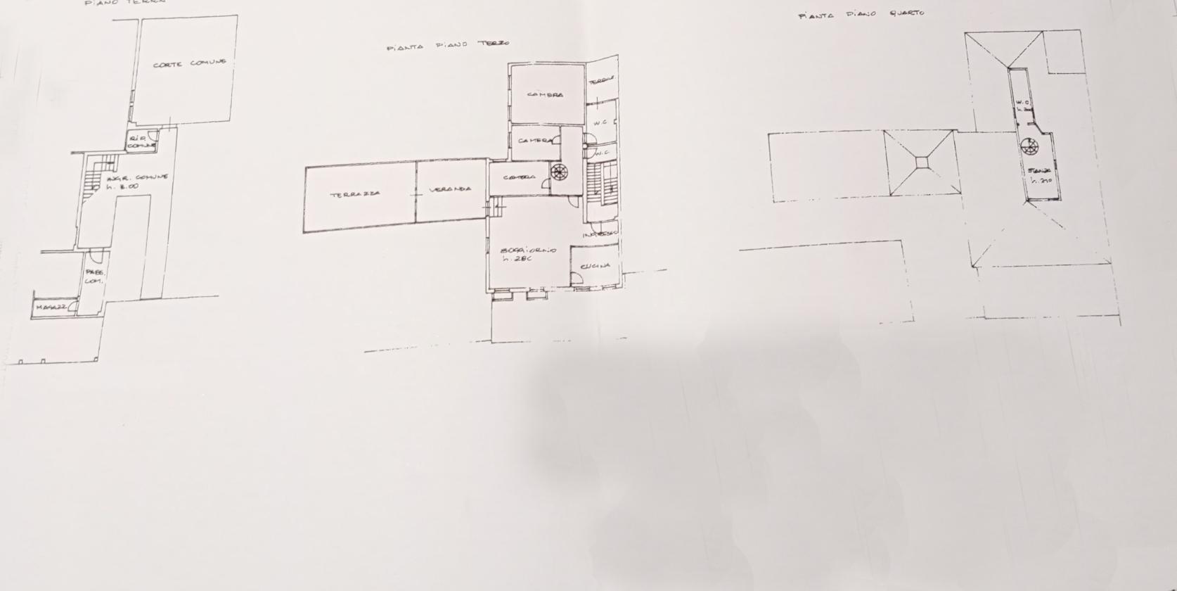
Cannaregio, v.ze SS Giovanni e Paolo, ultimo piano con terrazza

Cannaregio, vicinanze SS Giovanni e Paolo, ultimo piano con grande terrazza con vista panoramica e veranda introvabile con vista sui tetti della città. La proprietà è composta di ingresso, soggiorno, cucina, tre stanze, 2 bagni e altra terrazza di servizio. Al quarto piano troviamo altra stanza con bagno. Magazzino al piano terra.
€ 650.000,00- Rif 2577
Contratto:
Vendita
Zona:
3- Cannaregio
mq:
160
N° di camere:
3
Prezzo:
€650.000,00-
Tipologia:
Appartamento































